Salts Mill & New Mill
Monumental Italianate mill blocks with palazzo rhythms, engineered for light, power and fire separation.
Building guideHow Lockwood & Mawson and Sir Titus Salt created a complete model village: Italianate mill forms, a formal street grid, unified stone terraces and civic set pieces — with a designed park across the river.

Saltaire is a complete mid-19th-century model village planned around textile production and social welfare. The architecture is unified in material and proportion: local sandstone, disciplined fenestration and classical composition, with Italianate palazzo language shaping the mills and the grandest civic buildings.
The street grid is formal and legible, anchored by Victoria Road — aligning mill offices with the church, institute and other set pieces — and by the relationship with Roberts Park across the river. Together they create a landscape of work, welfare and recreation that remains remarkably intact.
These are the core buildings that define Saltaire’s look and feel. Each card links to a deeper guide, mixing history with practical visiting tips.
Monumental Italianate mill blocks with palazzo rhythms, engineered for light, power and fire separation.
Building guideItalianate west portico, round tower with clock faces, octagonal colonnade and dome; Salt family mausoleum.
Building guideCivic centre for learning and leisure; tonic of education, music and assemblies in a formal classical shell.
Building guidePhilanthropic model housing and care near the church, set within landscaped grounds on Victoria Road.
Building guideWell-lit classrooms, ordered elevations and disciplined fenestration; investment in skills and welfare.
Building guideDesigned landscape by William Gay (1871): promenade, bandstand, axis and views across the valley.
Building guide
The Bradford Antiquary The Journal of the Bradford Historical and Antiquarian Society Third series No.16 2012

Includes snippet about Saltaire Park and Sir James Roberts

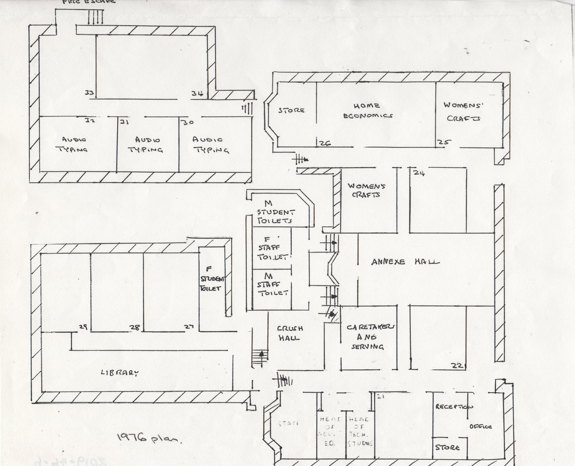
1976 plan of Shipley college - black and white - showing annexe hall, rooms, typing rooms, womens crafts, library etc.

Booklet: 'History of The Bradford Property Trust 1928-1978' by John Brennan (1978)

A reproduction of the 1906 Ordnance Survey Map, part of the Godfrey Edition

An illustrated paperback book subtitled The Buildings of the Yorkshire Textile Industry

3 Copies of plan of 'A Palace of Delight' The original layout of the 1887 Saltaire Exhibition

Line-drawn plan of the Salt High School building on Victoria Road
The village is arranged on a rectilinear grid with a clear hierarchy: Victoria Road as ceremonial axis; regular cross-streets; and short vistas to civic buildings or mill masses. This order delivers easy wayfinding and a calm streetscape.

Illustrative view — consult official mapping for boundaries and listings.
Look for the bay rhythm set by window spacing; string courses and cornice lines unify blocks; door surrounds vary subtly by status. Cast-iron rainwater goods, stone boundary walls and simple railings complete the streetscape.
Workers’ housing is deliberately regular and healthy by the standards of the day, with stepped status cues in plot width, siting and detail. Higher-status dwellings face key routes or corners; standard terraces fill the grid.
Rarer within the model village; Saltaire typically avoids the densest back-to-back patterns seen elsewhere in Bradford.
Two-storey, front-and-rear access stone terraces, ordered window bays, simple cornice or eaves line.
Larger dwellings, corner siting, extra storey or bay width; often nearer principal axes and civic buildings.
Church, Institute (Victoria Hall), Schools, Dining Hall, Almshouses/Hospital — all carefully composed and placed.
Public buildings articulate the moral and social ambitions of the village: worship, learning, care and recreation are expressed with confident classical language and high-quality craft.
Italianate composition with portico, tower and dome; axis with mill offices and Victoria Road.
Read moreClub & Institute for education and recreation; a formal classical front anchoring civic life.
Read morePurpose-built care and philanthropy expressed in dignified stone ranges and gardens.
Read moreWell-proportioned teaching spaces and orderly façades; investment in skills and welfare.
Read moreA short loop that reveals the planning and architectural language. Start at the mill offices and follow Victoria Road to the church and civic cluster, then cross to the park.
Palazzo composition; entrance hierarchy; relation to mill ranges.
Status cues: plot width, door surrounds, ironwork, boundary walls.
Portico, tower, clock faces, octagonal colonnade, dome; mausoleum to south.
Set-back ranges and landscaped setting; humane scale in stone.
Civic classicism; assembly rooms; composition to Victoria Road.
Large windows, ventilation, disciplined fenestration.
Axis and views; bandstand and promenade by William Gay (1871).
Tip: combine with our best walks for longer routes.
Many works require consent. Always check with the Council’s conservation team and read the Conservation Area guidance. See our masthead for contacts.
Lockwood & Mawson of Bradford, working closely with Sir Titus Salt. Their practice delivered a unified classical-Italianate language across civic and domestic buildings.
Italianate/classical for major set pieces (mill, church, institute) and disciplined, unified stone terraces for housing. The overall effect is ordered, restrained and coherent.
A formal grid with axial Victoria Road linking mill offices, church and civic buildings, and a riverside park across the Aire to the north-east.
Many properties are listed or within a Conservation Area. Changes often need consent. Matching original proportions and materials is key — seek advice first.
Official synopsis: OUV, criteria, integrity & authenticity.
Local policy context and overview.
National Heritage List records for individual buildings.
Building history and current use of the Institute.
Background, visiting and community info for the church.
We prioritise official and primary references.